Jump to content

skodaclub.bgskoda-auto.bgskoda-auto.bgskoda-auto.bgskoda-auto.bgskoda-auto.bgpepino-racing.comtraxxas

Recommended Posts

Публикувано

Седалките най-накрая са вързани. ?

Оказа се не толкова сложно, стига всичко да е описано.

Качвам схемите, които ползвах от английския форум, в случай че бъдат полезни на някого. 

1.jpg.c1700d5f5c87d445595c4ee4285f2fa2.thumb.jpg.a9608705d84f4c4c905ea40c932acdfd.jpg

2.jpg.5e02b32c83eb7e9c21645678c50aea74.thumb.jpg.7ba228dcc25e59c7533e981a72a1b358.jpg

3.jpg.3e0641b4eca92dd47be575e8f13ed611.thumb.jpg.9c436358c448b7d91c5d52be72704434.jpg

  • Отговори 117
  • Период
  • Последен отговор

Най-много писали в темата

  • Rosen Raychev

    55

  • The Best Forman

    21

  • __smirnoff__

    5

  • Logrus

    5

Публикувано

Евала за проекта определено :) с времето фелиция комби започна да ми харесва като визия :D

попътен вятър и дано я видим скоро :)

Публикувано

Благодаря! 

Пожелавам успех и с твоята красавица! 

  • 2 седмици по-късно...
Публикувано (Редактирано)

Тези дни се занимавах със смяна на клемореда (беше ми изпаднал за без пари преди около година), защото до сега се палеше на контакт и с бутон.

Подмяна на един горивопровод и кабелите за третия стоп понеже единя беше буквално стопен, че и рязан на всичкото отгоре.

 

 

Плановете ми като цяло за колата са кожени волан, ръчна и топка на скоростния лост (като оригиналните на L&K, които не взех от донорката, понеже бяха прекалено износени). Да сложа допълнително осветление за багажника и задните седалки и най-вече да измъдря как да сложа ел. стъкла за задните врати. За джанти и боя(има доста нужда) ще мисля в бъдеще.

Относно ел. стъклата за отзад имате ли някакво мнение за тези механизми?image.png.09d25905bd02cc3a04374c53e04a16df.png

Има ли смисъл от тях (става въпрос за качество и колко ще издържат) или да си търся за преправяне заводски от друга кола?

 

За осветлението отзад преди време си мислех да монтирам оригиналния плафон на мястото на пепелниците, вързан за прекъсвачи на вратите прекъсва ама се отказах, първо ,защото корите трябва да се отрежат(а това смятам да НЕ правя) и второ, че ще свети в краката, а като цяло не е това идеята за осветление на задните седалки .

 

 

Отворен съм за всякакви съвети и предложения относно какво може да се прави по нея.

Редактирано от Rosen Raychev
Публикувано

Тизи машинки работят , но са много шумни .. за задни стават , защото няма да се ползват често .

  • 2 седмици по-късно...
Публикувано

Здравейте, за ел. стъклата си промених мнението, като мисля дса мина на този вариант: 

това са преправени ел. машинки за предните врати с повдигача на задните , но това ще трабва да почака...
Тази седмица беше просто "уникална". Като за начало сряда сутринта на път за работа баща ми се натресъл в теглича на един изгнил пасат:

IMG-9d3820161ca6e0eda56d92114c1aa3f0-V.jpg.e646f8292df3e9e46d356b3a167649e4.jpg

IMG_20200704_164010.jpg.50d7a70b0426e56f6381f0ad296fd84f.jpg

IMG_20200701_192200.jpg.7ba38eadc16016a87c841f726c27bab8.jpg

 

Вчера свалих бронята в крайна сметка да огледам малко по - обстойно какви са пораженията от сблъсъка:

IMG_20200705_102748_580.jpg.fb274d5eca5f603eb3843c963a7b37a7.jpg

IMG_20200704_170402.jpg.527af4bac3d9f1b2736b978264904414.jpg

IMG_20200704_170420.thumb.jpg.08cfbfa934f327474ee61b4738c78aab.jpg

IMG-120cee8f20206f6a1fbd003ff9e85897-V.jpg.9ae84a25cffd46071eb6f738e6cca3bf.jpg

IMG-a0324144750243c88cfdff7198f99b14-V.jpg.857dfc5907768d919bacedeab35da990.jpg

IMG-a620547da7b27ddb088d5a9b9a4ee91e-V.jpg.75aab8ba0cb4c8d0a210351b2a41b4ab.jpg

IMG-727f7c1a2773cdd5c78c50ff79866576-V.jpg.56b4c301cc0d8de6b6c55214589f9d34.jpg

Сега, ясно е, че гредата ще се сменя, но основният проблем е в последните 3 снимки. Вижда се ,че основата е сгъната, обаче това всичко пречи и на изравняването на фаровете(от първите 2 снимки виждате луфта между фаровете и капака ).Като ги свалих и ги изравних с капака при този от страната на шофьора има разстояние около 1см между фара и самото лице(не съм наясно как се нарича тази част, която държи фаровете и бронята) там където трябва да влезе болта долу вляво на фара. Въпросът е има ли смисъл от ремонт или смяна на това "лице", понеже е толкова огънато под фара пред шофьора, че и да закупя нова греда няма да мога да я сложа?

 

 

За капак на всичко ден след катастрофата баща ми го уволниха от работа и поради тази причина предполагам, че ще престана да правя неща по колата за около 2-3 месеца.

 

Както и да е, да сме здрави дето се вика пък другото ще се оправи!

 

Понеже в момента нямам много възможност, както разбирате, да се харчат пари по колата, така и така я бях свалил вече, а и мисля да я сменям, реших да закърпя бронята с добрите стари свински опашки. Мисля, че се получи прилично, а при първа възможност ще си намеря друга.

IMG-7f1718a895e439196dbf8a86eddf263e-V.thumb.jpg.9e8d4088a4fd387c46cc36b57b16187d.jpg

IMG-c5ee79eeadf850ae93b09f448803ad74-V.jpg.6032d78f9cb3f92c87a7ddadd23569e8.jpg

 

Публикувано

При Фаворит/Форман съм сигурен , че рамките на фаровете са отделен детайл , за Фелиция не знам как е , но видимо мисля , не е цяла рамка за радиатор и фарове , та много вероятно да се наложи да дръпнеш сгънатото и след това да пасваш по новата греда на бронята и останалите части от предницата.

Бронята ако е много натрошена , по-добре я смени с някоя втора ръка.

Най-важното е , че няма пострадали , желязото ще го оправиш.

Публикувано

Благодаря! Да, рамката около фаровете е отделен панел, който е заварен. 

 

Прав си, хубавото е, че наистина няма пострадали, а другото е поправимо. 

Публикувано (Редактирано)

От нямане какво да правя се заех със свалянето на таблото, за да прибера тук таме ел. инсталация. С баща ми се сетихме, че зимно време по време на движение обдухването на предното стъкло не работи и извадихме клапите, за да видим къде е проблема. Оказа се това чудо на чудесата 

IMG_20200711_163425.thumb.jpg.8c23bc687f0c3cba3e618f737b827292.jpg

Закрепено е върху тези клапиIMG_20200711_163435.thumb.jpg.c04f1f614a82fce1526b42c4d10bb639.jpg

Идеи от къде мога да си намеря друго? 

 

 

*ако трябват още снимки ще кача

 

Редактирано от Rosen Raychev
  • 1 месец по-късно...
Публикувано

В мегапартс няколко месеца си седеше преден ляв механизъм за ел. стъкла (фейслифтовите). Взех го заедно с един десен заден повдигач ей така за да пробвам какви ще ги свърша. 

Та от това:

IMG_20200814_162928.thumb.jpg.5c6ee9b2749c2d6c12f92c94d8a37242.jpg

Стана това:

IMG_20200814_183038.thumb.jpg.e01a1a0a3c4a34a21b250342adebdb48.jpg

Хареса ми как стана и не сложна процедурата. 

Сега остана само да го навържа, понеже от мегапартс не дават букси и окабелявания. 

Идеи как да го накарам да работи? (интересува ме главно кое е плюса и кое минуса от 10те пинчета , за да го направя като преди фейслифтовите машинки, че е по-просто) 

 

Издирва се и предната дясна ел. машинка. 

 

 

 

Публикувано

Искаш да е просто или като оригинално ?

Аз лично не съм слагал оригинални ел. стъкла (по-точно веднъж се мъчих , но не съм задълбавал) , но най-простото е да извадиш захранванията на моторите и да си ги инвертитираш през две релета (на мотор) , защото оригинално поляритета се обръща в копчетата.

Публикувано (Редактирано)
преди 49 минути, The Best Forman написа:

Искаш да е просто или като оригинално ?

И двете е най-добре.?

 

преди 49 минути, The Best Forman написа:

най-простото е да извадиш захранванията на моторите

Отварях ги но вътре е някаква платка, която няма махане(е, вероятно от шубе, че бая неща съм чупил по тоя начин) и в общи линии не мога да разбера кое е плюс и минус.

IMG_20200814_122752.thumb.jpg.021b9fe483952c9de002434a501b2b7b.jpg

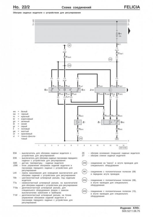
Това е буксата. Закачих на 12в по пътя на логиката двата по големи пина като + и - и се чува само тихо тракане все едно се опитва да върти, но не го прави. Чак се замислих да не би да не работи ама едва ли ще го продават тогава. От Briskoda ми пратиха схеми, ама без кабелите с цветовете е малко трудно:

image.thumb.png.83fd50d1ceeb314505fba26feec960e6.png

Редактирано от Rosen Raychev
  • 1 месец по-късно...
Публикувано

С ел. стъклата работата се закучи - вече ще ми трябват 2 моторчета вместо едно, щото се прецака ама както и да е, майната му. Все още ги търся просто гледам за някаква прилична цена и ги взимам.

 

Днес занимавката беше реглажа на хлабината на клапаните - еми не съм толкова доволен, понеже като запалихме колата се чуваше тракане, което ще рече ,че сега са много разхлабени , но пък ме учуди, че преди това  почти всички бяха с прекалено малък луфт (не знам дали е от това, но свещите бяха направо черни откъмм електрода ). Ама толкова за хлапак дето няма и 15 навършени години и всичко, което знае е само на теория каквото е чел из книги и всякакви форуми или гледал на клипчета плюс баща му, който не се е интересува от коли и знанията му по темата са колкото да може да бъде шофьор и за всичко е ходил по майстори  :))

В крайна сметка излиза, че пак ще се сваля да се донаправи, но този път ще съм малко по-наясно какво се иска.

И последно: Как да затегна първата свещ от страната откъм водната помпа, щото с тоя компресор на климатика не мога да вкарам тресчотката на вложката, а ключа за свещите опира в главата? За сега я завихме само на ръка, за да запалим колата, но предполагам, че това е проблем. И ако някой пита, старата я изкарахме на парчета, така че по обратния начин не е вариант:)) 

Публикувано

Пак се помъчих, регулирах клапаните наново, като имаше леки отклонения от вчера. 

Свещта успях да я затегна малко повечко с помощта на 4 малки шестограма вместо тресчотката:

IMG_20200921_171427.thumb.jpg.726bba9e02d0be4ad20e246e079aea87.jpg

IMG_20200921_171434.thumb.jpg.e8ae5b14a2cb3181b0681c33b20b1366.jpg

 

Звукът е доста по приятен от вчерашния трактор, но не мога да преценя разликата от преди да я отворя. Според мен звучи добре, обаче като седнахме вътре, според баща ми вибрациите са се увеличили. 

Единственото, което ми идва на ум (освен отново да не съм регулирал пустите клапани като хората) е да не съм затегнал свещите достатъчно, понеже ми е за първи път и не напъвах много от шубе. 

Публикувано

Реглажа на клапаните не е мозъчна хирургия .. цаката е да уцелиш луфтоветре .. на тоз мотор по спомен всмукателните пръти са алуминиеви и луфтовете са 0.25/0.20.

Най-лесно се определя дали е точен луфта е като се опиташ да вкараш следващия размер пластина  и не трябва да може. Тоз мотор се плаши от натегнати клапани!

Публикувано

Това го четох и в други теми от форума.

Може би по-трудното в случая е например как да разбера, че 1ви клапан е напълно затворен, а в същото време - 8ми напълно отворен за да го регулирам? 

Публикувано

Не го чети това .. правиш си ги цилиндър по цилиндър (най-лесно е).

Ако ти е трудно , сваляш свещите и с една отверка си определяш ГМТ.

Публикувано

Добре, мерси

  • 3 месеци по-късно...
Публикувано

За много години!
PSX_20201205_215552.thumb.jpg.3d2b2ac243af680249660ab2542c8e22.jpg

Нещата ще вървят доста бавно най-вече заради училището, а пък и финансови възможности, но пък ето какво стана до сега.

Една вечер колата не щя да запали - пали за 1-2 секунди и гасне. Сигурно от 15тия път вече успя и след като загря нямаше повече проблеми. След няколко дена обаче пак така. Започнах да проверявам сензорите 1 по 1 и като разкачих ламбда сондата си запали, закачих пак и гасне. Тъкмо се приготвях да я сменям с една, която Сашо (maxrpm) ми подари, но  преди да започна викам на баща ми да пробва да запали последно със закачена ламбда и успя от нищото, та така и не я смених.
Купихме си и кабел за диагностика, а отново Сашо ме снабди с програмата. Закачих я и ми показа няколко грешки, от  които едната беше за ламбда сондата, а друга, която се молех да няма беше за имобилайзер. Може и да съм направил грешка, но само ги изчистих и от тогава не съм имал никакви проблеми няколко седмици. Проверих още няколко пъти и след каране, но грешки няма. 
След като вече си имам кабел и програма, отново благодаря на Сашо, смених и чупената дроселова клапа и си я адаптирах както си трябва. Лично аз не усетих някаква разлика, освен че като тръгва студена вече не забива муцуна първите 50-100 метра, но баща ми твърди, че се усеща и по-друго на баир. Тук е момента да попитам какво може да се ползва за гарнитура на дросела, понеже не намерих готова и си отрязах от клингерит(който също бая търсих)?

Намерих си и нова броня, за която ме излъгаха малко, че била здрава, ама карай, в пъти по-добре е от старата:
IM1G_20201230_160053.thumb.jpg.7be765e4f40f99827e0a128b25a218fa.jpg
IM1G_20201230_162704.thumb.jpg.360ab64c946b97a8698ee8fc29893586.jpg
IMG_20210102_1173603.thumb.jpg.e8d0c86fb080d8cdb883f750afcb45dc.jpg

Между другото скъпо ли е да се сменят регистрационните табели с нови(става въпрос да си остане същия номер), защото тази е огъната или е прекалено голям филма?
Друго, което вече си имам е нов здрав червен калник, който си чака боята ама така като гледам ще си събирам части, после още пари и някой ден ще ходим на цялостно пребоядисване.
Намерих и кола със същия климатик като моя и замалко щях да се сдобия с тръбата, която ми трябва  и с разпънка за макферсоните, но този като ми изкара цена 3-4 пъти над това, което си мислех и се отказах, рано или късно ще се намери нещо.

Колкото повече чета из форумите, толкова повече ми се иска да започна да правя нещо повече по тази кола от едни седалки:

Kъм момента откъм възможности и условия за работа съм се насочил към по-големи спирачки + отпред и отзад стабилизиращи щанги. За отзад в briskoda казват , че стабилизираща щанга става от Mitsubishi l200, а за отпред от фелиция. Кои фелиции имат стабилизираща щанга, знам за пикапите, но всички двигатели ли?





 

Публикувано (Редактирано)

Радвам се че съм ти помогнал, за Пловдивчани винаги, за стаб щангата отпред 1.3 няма, трябва да вземеш от 1.6 или 1.9D комплект с тампоните , болтовете и всичко , ако имаш отвори на носачите е добре, предполагам че твоята има защото е фейс и е GLXi , aз имах . Човека от моргата ми я даде за 15 лв и не можа да повярва че 1.3 няма стаб щанга ... ;)

 

Броня здрава 2ра ръка фейслифтова , почти няма, радвам се че си намерил що годе читава. Гарнитурата от клингерит , ако не дърпа въздух си я карай , ако не ти харесва как върви изрежи от дебел кадастрон за рисуване . Тръбата на климатика , на мен , щеше да ми е Number 1 priority , особено , когато стане лято , ако не намериш , опитай се да я завариш или оправиш. Да имаш клима на 35 градуса е рай.

 

От мегаскуирта не виждам смисъл , навремето Мартин Тини от форума си караше 120 ката с мега и вървеше яко , но моята беше чипосана и не е коооои знае какво.

 

За номерата , да, може , те са собственост на кат , но ако отидеш в Кат Пловдив с подобна молба , ще те гледат като последния мохикан ... Аз не бих ходил при куките за подобна услуга.

Редактирано от PIIIcoppermine
Публикувано

Имаше някъде тема за смяна на номерата, филма никак не е малък, в софия става работата при производителя на табелите - фирма БМВ, лесно се помни името :D Доколкото съм чел е бая нерви, но от личен опит нищо не мога да кажа. Май по-добрият вариант е да си я изправиш и да си я възстановиш и боядисаш колкото можеш.

Мегаскуирт е сериозна заигравка, скъпа и трудно откриваема последните години. Според това какво има на пазара, си направи сметка колко ти е нужно и съотношение цена/подобрение :) Иначе ефект ще има, разбира се, но ако излезе на цена два пъти колкото колата, дали си заслужава? 

Стаб щанга - да, винаги! Тръгвай по моргите да търсиш, може и тръба за климатика да изскочи.

п.п. Много се радвам на ентусиазма ти, и подкрепям всякакви подобни заигравки. Човек с опити и грешки се учи много повече, отколкото с четене, пък макар и да излиза скъпо понякога. 

Публикувано

Няма какво да обикаля jiji avto са ви комшии и продават предимно Шкоди .. малко са скъпичии !

Публикувано

то това си е наследника на единия от шкодовите магазини в Пловдив, каквото остана от магазина е там сега

Публикувано

С табелите работата се видя, че излиза излишна?

Това за мегаскуирта наистина е доста заигравка при това се убедих, че и никак не евтина, но го дадох като пример за нещо, от което наскоро започнах да се интересувам.

Очевидно, че 1.6 или 1.9 моторите са по-добрите бази за подобрения, но смятам за интересно това какво може да се постигне с един такъв 1.3/1.4

Стига да имам място и финансиите бих експериментирал(дори и с не шкодов двигател) . Към момента това е трудно най-малко, защото сме с единствена кола, която се ползва почти всеки ден. Ще се мисли за напред. 

Джи джи ауто ги посетих през изминалото лято и останах с впечатлението, че гледам автосалон. 

Тук-там в ъгъла да се мернат някоя врата или капак от фелиция/фаворит. 

 

Публикувано

Има една приказка - не са важни конете под капака , а магарето зад волана :)

1.9Д като мощност е по-малко от този , който е сега , но са малко повече нютоните , но на практика става за същото - придвижване.

1.6 АЕЕ е пак толкова умрял , но с повече проблеми .. на практика и двата мотора не стават за фън .. ако искаш адреналин - 1.8Т , а може и 1.4 ТСИ :)

Ако решиш да засилваш този има мегдан - 280/280 разпределителен вал (ако държиш на инжекциона) или 320/320 с двоен карбуратор , но забравяш за ежедневно каране - става кола за фън и късане на гуми .. макар че комби и мотоспорт съм виждал само при Волво Т5R :)

Създайте нов акаунт или се впишете, за да коментирате

За да коментирате, трябва да имате регистрация

Създайте акаунт

Присъединете се към нашата общност. Регистрацията става бързо!

Регистрация на нов акаунт

Вход

Имате акаунт? Впишете се оттук.

Вписване
×
×
  • Създай нов...

Важна информация.

За да използвате този форум, трябва да се съгласите с нашата Политика за лични данни. Трябва да се съгласите и с използването на бисквитки (cookies), които помагат за пълната фунционалност на форума. Може да настроите през вашия браузър кои бисквитки искате да се използват. С натискане на бутон "Потвърди" удостоверявате съгласието си с нашата Политика за лични данни и използването на бисквитки.